Espace propriétaire
fr

Votre recherche

Saint-Julien-l'Ars (86800)

9 pièces - 238 m²

Saint Julien L'Ars - Bourg - 15 minutes de Poitiers Centre et CHU

Ref : 5126
A propos de ce bien

à 15 minutes du centre ville de Poitiers et du CHU, au calme, dans le Bourg de Saint Julien l'Ars à proximité des commerces et de l'école, une ravissante maison ancienne du 19ème siècle de plus de 220m² de surface habitable sur un terrain de 857m² avec garage et dépendance

Arrivée dans le jardin par le portail sur rue ou bien par le fond du jardin également

La maison est disposée de la manière suivante :

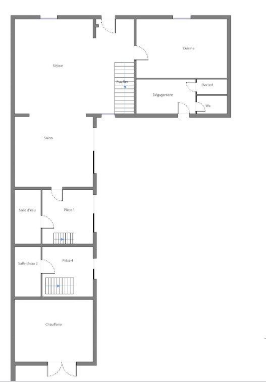
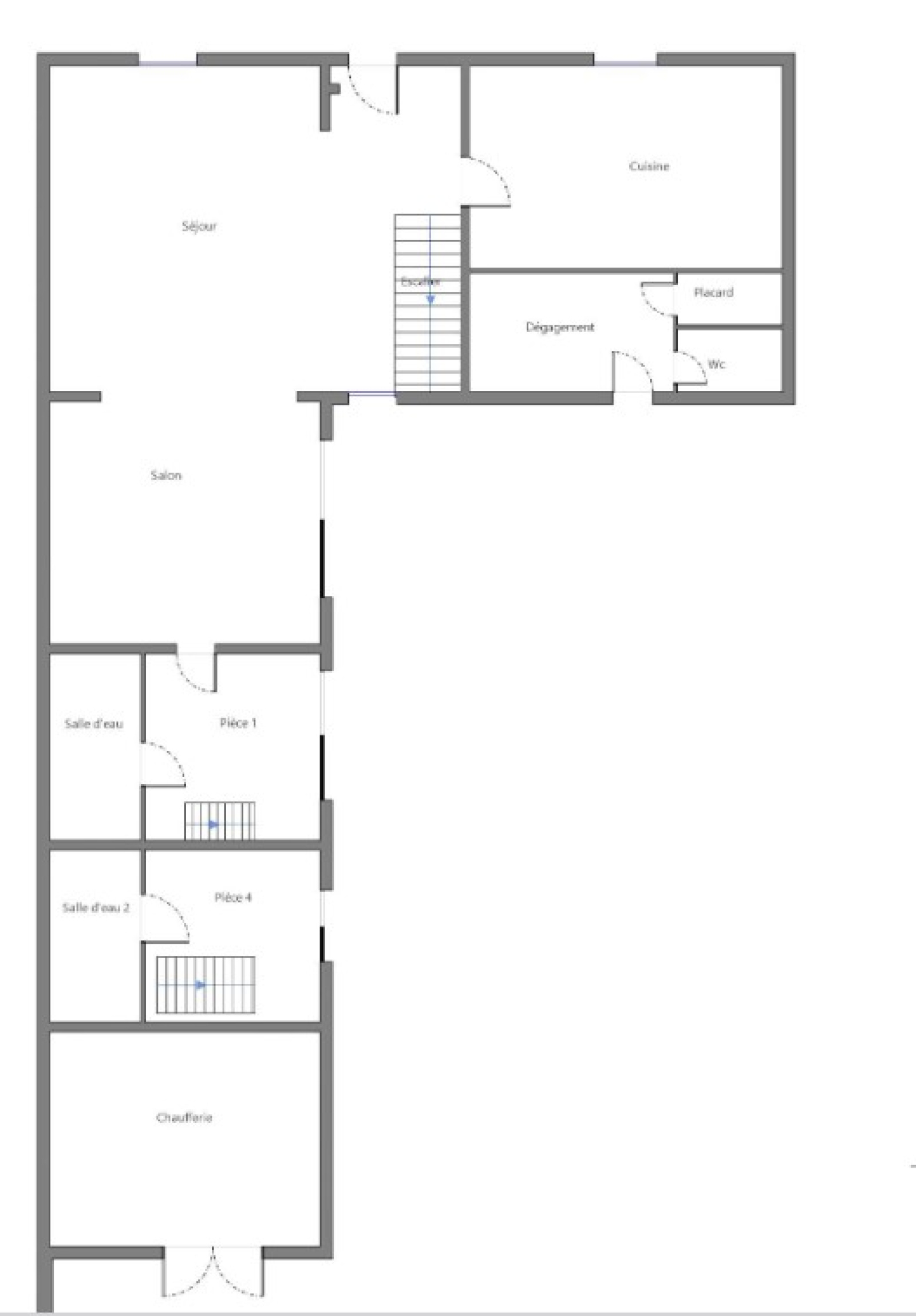
Rez-de-chaussée :

Entrée de 9,46m² sur carreaux de ciment d'époque et avec placard, Séjour de 40m² sur parquet récent avec cheminée insert, cuisine aménagée récente et équipée de 15,18m², espace arrière cuisine avec évier de 5,26m² donnant sur jardin et un WC de 1,08m²

côté jardin, un bureau de 15,40m² avec une salle d'eau + WC de 3,14m² et en mezzanine au-dessus un espace couchage de 15,46m² mansardée sur moquette

Mitoyen accessible depuis le jardin un studio avec une pièce de 9,60m² coin cuisine, une salle d'eau avec WC de 3,06m² et en mezzannine au-dessus un espace couchage de 14,59m² mansardée sur moquette

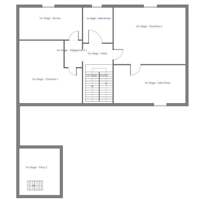
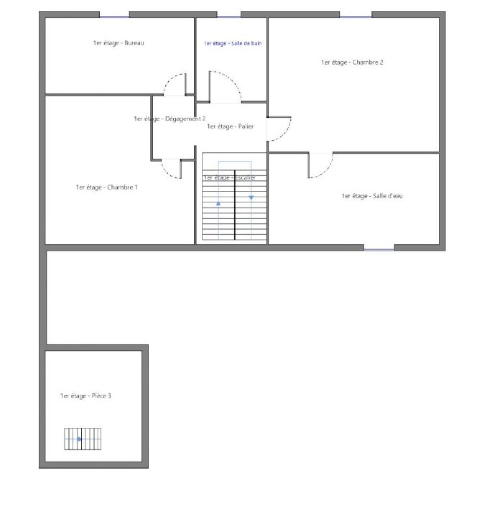
1er étage :

Palier sur parquet de 3,66m², salle de bains avec WC de 4,68m², chambre sur parquet ancien de 15,55m² avec placards -penderie et sa salle d'eau avec WC de 7,75m², dégagement de 1,48m² desservant une chambre sur jardin de 13m² sur parquet ancien et placards-penderie et pièce de rangement de 8,82m² sur parquet ancien sur rue pouvant faire office de bureau également ou de chambre de bébé

2nd étage :

Espace chambre et salle de jeux de 51,40m² sur moquette, légèrement mansardé avec une fenêtre et 4 velux

côté jardin, une grange de 20,44m² avec couverture neuve contenant la chaudière gaz de ville basse température changée en 2012

au fond du jardin un garage accessible par une impasse

Un puits privé avec pompe de relevage pour arroser le jardin

Maison en pierres avec une couverture ardoise remaniée il y a moins de 4 ans

Descriptif de ce bien
Général
Code postal 86800
surface terrain 857 m²
Surface loi Carrez (m²) 210 m²
Nombre de chambre(s) 5
Nombre de pièces 9
Détails
Nb de salle de bains 1
Nb de salle d'eau 3
Cuisine Séparée
Type de cuisine Equipée
Mode de chauffage Gaz de ville
Type de chauffage TRAD_TYPE_CHAUFF_CHAUDIERE
Format de chauffage Individuel
Interphone NON
Visiophone NON
Balcon NON
Terrasse NON
Murs mitoyens 1
Nombre de garage 2
Cave NON
Nombre de parking 2
Exposition Est-Ouest
Année de construction 1890
Terrain piscinable OUI
Terrain arboré OUI
Composition
Rez de chaussée
bureau 15.54 m²

salle d'eau 3.14 m²

cellier 5.26 m²

WC 1.08 m²

réserve 1.08 m²

chambre de service 9.60 m²

salle d'eau 3.06 m²

Grange 20.44 m²

garage 39 m²

entrée 9.46 m²

pièce à vivre 22.50 m²

salon/sejour 16.85 m²

cuisine 15.18 m²

Etage 1
palier 2.66 m²

degagement 1.48 m²

chambre 14.59 m²

chambre 13 m²

salle de bain 4.68 m²

chambre 15.55 m²

salle d'eau 7.75 m²

buanderie 8;82 m²

chambre 15.46 m²

Etage 2
chambre 51.40 m²

Financier
Taxe foncière annuelle 2 200 €
Energie
DPE GES
Contacter pour ce bien
L'agence
Téléphone 05 49 88 01 87
Adresse
43 rue de la Marne BP368 86000 Poitiers

* Champ obligatoire

Les informations recueillies sur ce formulaire sont enregistrées dans un fichier informatisé par La Boite Immo agissant comme Sous-traitant du traitement pour la gestion de la clientèle/prospects de l'Agence / du Réseau qui reste Responsable du Traitement de vos Données personnelles. La base légale du traitement repose sur l'intérêt légitime de l'Agence / du Réseau. Elles sont conservées jusqu'à demande de suppression et sont destinées à l'Agence / au Réseau. Conformément à la loi « informatique et libertés », vous disposez des droits d’accès, de rectification, d’effacement, d’opposition, de limitation et de portabilité de vos données. Vous pouvez retirer votre consentement à tout moment en contactant directement l’Agence / Le Réseau. Consultez le site https://cnil.fr/fr pour plus d’informations sur vos droits. Si vous estimez, après avoir contacté l'Agence / le Réseau, que vos droits « Informatique et Libertés » ne sont pas respectés, vous pouvez adresser une réclamation à la CNIL. Nous vous informons de l’existence de la liste d'opposition au démarchage téléphonique « Bloctel », sur laquelle vous pouvez vous inscrire ici : https://www.bloctel.gouv.fr Dans le cadre de la protection des Données personnelles, nous vous invitons à ne pas inscrire de Données sensibles dans le champ de saisie libre.
Ce site est protégé par reCAPTCHA, les Politiques de Confidentialité et les Conditions d'Utilisation de Google s'appliquent.

Découvrir nos outils