Espace propriétaire
fr

Votre recherche

Poitiers (86000)

8 pièces - 165 m²

POITIERS - PROMENADE DES COURS

345 000 €
Ref : 5216
A propos de ce bien

Proche de la Promenade des Cours, au calme, au fond d'une impasse dominant la ville, une maison en parfait état d'entretien de 165m² de surface habitable dont un séjour de 37m² avec cheminée, 6 chambres avec rangements, 3 salles d'eau, 3 WC, un bureau ainsi qu'un sous-sol de 60m² et 30m² de pièces à terminer d'aménager au premier étage.

Joli jardin arboré avec terrasse de 40m² plein sud et un parking pour 2 à 3 voitures + garage en sous-sol

744m² de terrain clos sans vis à vis et très calme

Prestations: Chauffage au gaz au rez de chaussée et radiateurs électriques à l'étage, adoucisseur

Maison en parfait état intérieur et extérieure (couverture, façades et volets)

Descriptif de ce bien
Général
Code postal 86000
surface terrain 744 m²
Nombre de chambre(s) 6
Nombre de pièces 8
Nombre de niveaux 3
Vue dégagée
Détails
Nb de salle de bains 1
Nb de salle d'eau 2
Mode de chauffage Gaz de ville
Type de chauffage TRAD_TYPE_CHAUFF_CHAUDIERE
Format de chauffage Central
Balcon OUI
Terrasse OUI
Nombre de garage 1
Cave NON
Nombre de parking 3
Exposition Sud
Année de construction 1981
Terrain piscinable NON
Terrain arboré NON
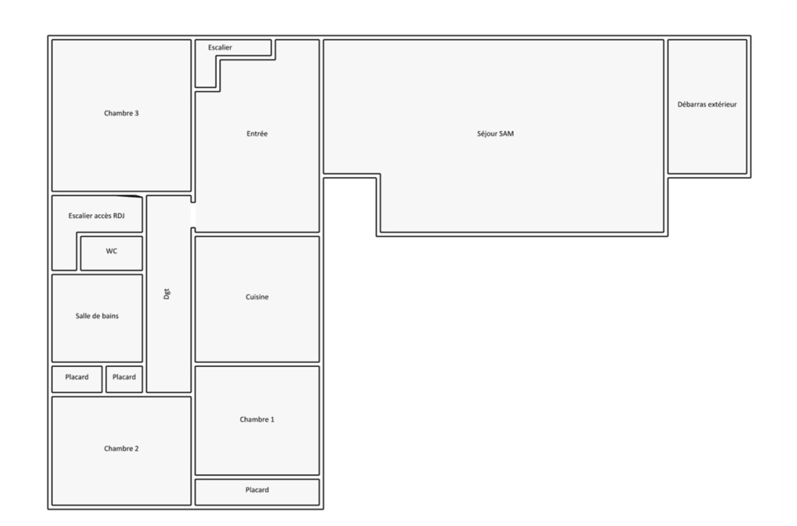
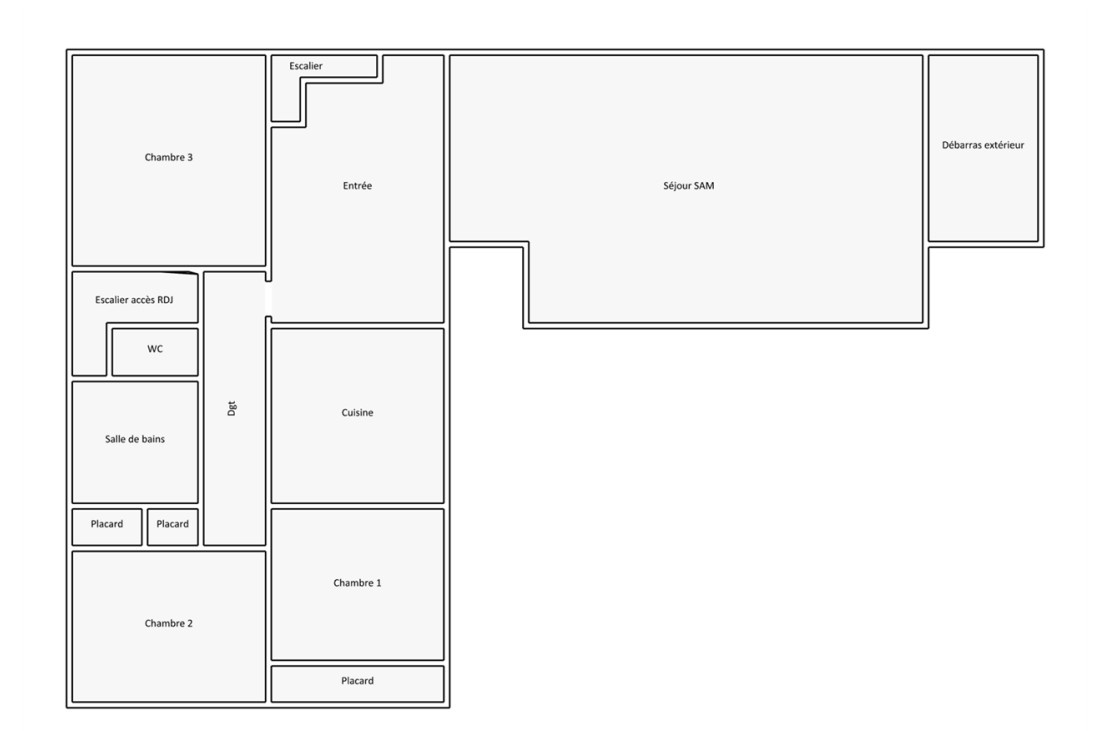
Composition
Etage -1
garage 21.40 m²

buanderie 37.78 m²

chambre 11.83 m²

salle d'eau 4.3 m²

Rez de chaussée
entrée 12.81 m²

salon/sejour 37.02 m²

cuisine 9.84 m²

bureau 12.09 m²

degagement 4.18 m²

WC 1.43 m²

salle de bain 6.09 m²

chambre 10.70 m²

chambre 11.25 m²

terrasse 40 m²

parking 30 m²

Etage 1
palier 4.16 m²

chambre 14.21 m²

chambre 10.13 m²

degagement 4 m²

chambre 14.59 m²

salle d'eau 2.60 m²

WC 1.21 m²

Grenier aménageable 13 m²

Grenier aménageable 18.16 m²

Financier
Prix de vente honoraires TTC inclus 345 000 €
Prix de vente honoraires TTC exclus 330 000 €
Honoraires TTC à la charge acquéreur 4,55 %
Charges 20 €
Taxe foncière annuelle 2 625 €
Energie
DPE GES
Contacter pour ce bien
L'agence
Téléphone 05 49 88 01 87
Adresse
43 rue de la Marne BP368 86000 Poitiers

* Champ obligatoire

Les informations recueillies sur ce formulaire sont enregistrées dans un fichier informatisé par La Boite Immo agissant comme Sous-traitant du traitement pour la gestion de la clientèle/prospects de l'Agence / du Réseau qui reste Responsable du Traitement de vos Données personnelles. La base légale du traitement repose sur l'intérêt légitime de l'Agence / du Réseau. Elles sont conservées jusqu'à demande de suppression et sont destinées à l'Agence / au Réseau. Conformément à la loi « informatique et libertés », vous disposez des droits d’accès, de rectification, d’effacement, d’opposition, de limitation et de portabilité de vos données. Vous pouvez retirer votre consentement à tout moment en contactant directement l’Agence / Le Réseau. Consultez le site https://cnil.fr/fr pour plus d’informations sur vos droits. Si vous estimez, après avoir contacté l'Agence / le Réseau, que vos droits « Informatique et Libertés » ne sont pas respectés, vous pouvez adresser une réclamation à la CNIL. Nous vous informons de l’existence de la liste d'opposition au démarchage téléphonique « Bloctel », sur laquelle vous pouvez vous inscrire ici : https://www.bloctel.gouv.fr Dans le cadre de la protection des Données personnelles, nous vous invitons à ne pas inscrire de Données sensibles dans le champ de saisie libre.
Ce site est protégé par reCAPTCHA, les Politiques de Confidentialité et les Conditions d'Utilisation de Google s'appliquent.

Découvrir nos outils