Espace propriétaire
fr

Votre recherche

Vendu
Poitiers (86000)

3 pièces - 73,55 m²

POITIERS Appartement de Type 3 de 73,55m² dans une résidence rénovée

Ref : 5080
A propos de ce bien

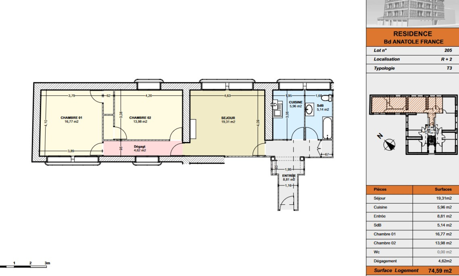
Aux abords du Plateau, dans une résidence ancienne entièrement rénovée, au deuxième étage, exposé Est et Ouest un appartement de 3 pièces d'une surface de 73,55m² sur parquet avec vue dégagée pour l'ensemble des pièces comprenant =

Un hall d'entrée sur parquet, un séjour sur parquet de 19,05m² avec cheminée et de grandes ouvertures, une cuisine aménagée, deux chambres sur parquet et une salle de bains avec WC.

Une cave au rez de chaussée inclus dans la vente

Double vitrage récent, chaudière gaz récente avec radiateurs en fonte, électricité aux normes

Parties communes entièrement rénovées (couverture neuve ainsi que façades, escalier repeint et isolé, visiophones, nouveaux compteurs d'électricité eau et gaz)

Possibilité d'acheter en plus un garage/box à l'arrière pour un prix total de 19.000€ honoraires inclus

D'autres appartements de deux et trois pièces sont également proposés à la vente dans cet immeuble = faites votre choix ! ( 3 vendus en 2 semaines déjà)

Descriptif de ce bien
Général
Code postal 86000
Surface loi Carrez (m²) 73,55 m²
Nombre de chambre(s) 2
Nombre de pièces 3
Etage 2
Ascenseur NON
Vue dégagée
Détails
Nb de salle de bains 1
Cuisine Séparée
Mode de chauffage Gaz de ville
Type de chauffage TRAD_TYPE_CHAUFF_CHAUDIERE
Format de chauffage Individuel
Visiophone OUI
Balcon NON
Terrasse NON
Murs mitoyens 1
Cave OUI
Surface cave (m²) 8
Exposition Est-Ouest
Année de construction 1955
Quartier CENTRE-VILLE
Composition
Etage 2
entrée 8.33 m²

cuisine 5.94 m²

salon/sejour 19.05 m²

couloir 4.83 m²

chambre 16.15 m²

chambre 13.97 m²

salle de bain 5.28 m²

Financier
Charges 60 €
Energie
DPE GES
Contacter pour ce bien
L'agence
Téléphone 05 49 88 01 87
Adresse
43 rue de la Marne BP368 86000 Poitiers

* Champ obligatoire

Les informations recueillies sur ce formulaire sont enregistrées dans un fichier informatisé par La Boite Immo agissant comme Sous-traitant du traitement pour la gestion de la clientèle/prospects de l'Agence / du Réseau qui reste Responsable du Traitement de vos Données personnelles. La base légale du traitement repose sur l'intérêt légitime de l'Agence / du Réseau. Elles sont conservées jusqu'à demande de suppression et sont destinées à l'Agence / au Réseau. Conformément à la loi « informatique et libertés », vous disposez des droits d’accès, de rectification, d’effacement, d’opposition, de limitation et de portabilité de vos données. Vous pouvez retirer votre consentement à tout moment en contactant directement l’Agence / Le Réseau. Consultez le site https://cnil.fr/fr pour plus d’informations sur vos droits. Si vous estimez, après avoir contacté l'Agence / le Réseau, que vos droits « Informatique et Libertés » ne sont pas respectés, vous pouvez adresser une réclamation à la CNIL. Nous vous informons de l’existence de la liste d'opposition au démarchage téléphonique « Bloctel », sur laquelle vous pouvez vous inscrire ici : https://www.bloctel.gouv.fr Dans le cadre de la protection des Données personnelles, nous vous invitons à ne pas inscrire de Données sensibles dans le champ de saisie libre.
Ce site est protégé par reCAPTCHA, les Politiques de Confidentialité et les Conditions d'Utilisation de Google s'appliquent.

Découvrir nos outils