Espace propriétaire
fr

Votre recherche

Sous-compromis
Poitiers (86000)

4 pièces - 92 m²

Maison rénovée avec trois chambres, possibilité d'en créer une quatrième, garage et jardin

231 000 €
Ref : 5186
A propos de ce bien

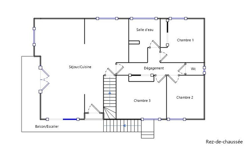
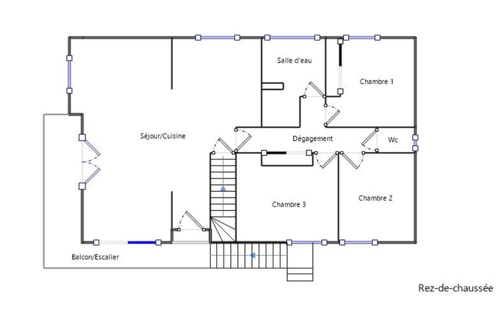
Entre POITIERS et BUXEROLLES, Maison entièrement rénovée de 92m² habitables + sous-sol de 80m², comprenant au premier étage : Entrée sur séjour de 29m² avec cuisine ouverte, cuisine aménagée et équipée, séjour lumineux avec trois expositions donnant sur balcon-coursive. Dégagement, Trois chambres, salle d'eau, WC séparés.

Chauffage pompe à chaleur, fenêtres en double vitrage, VMC, ballon d'eau chaude à accumulation neuf

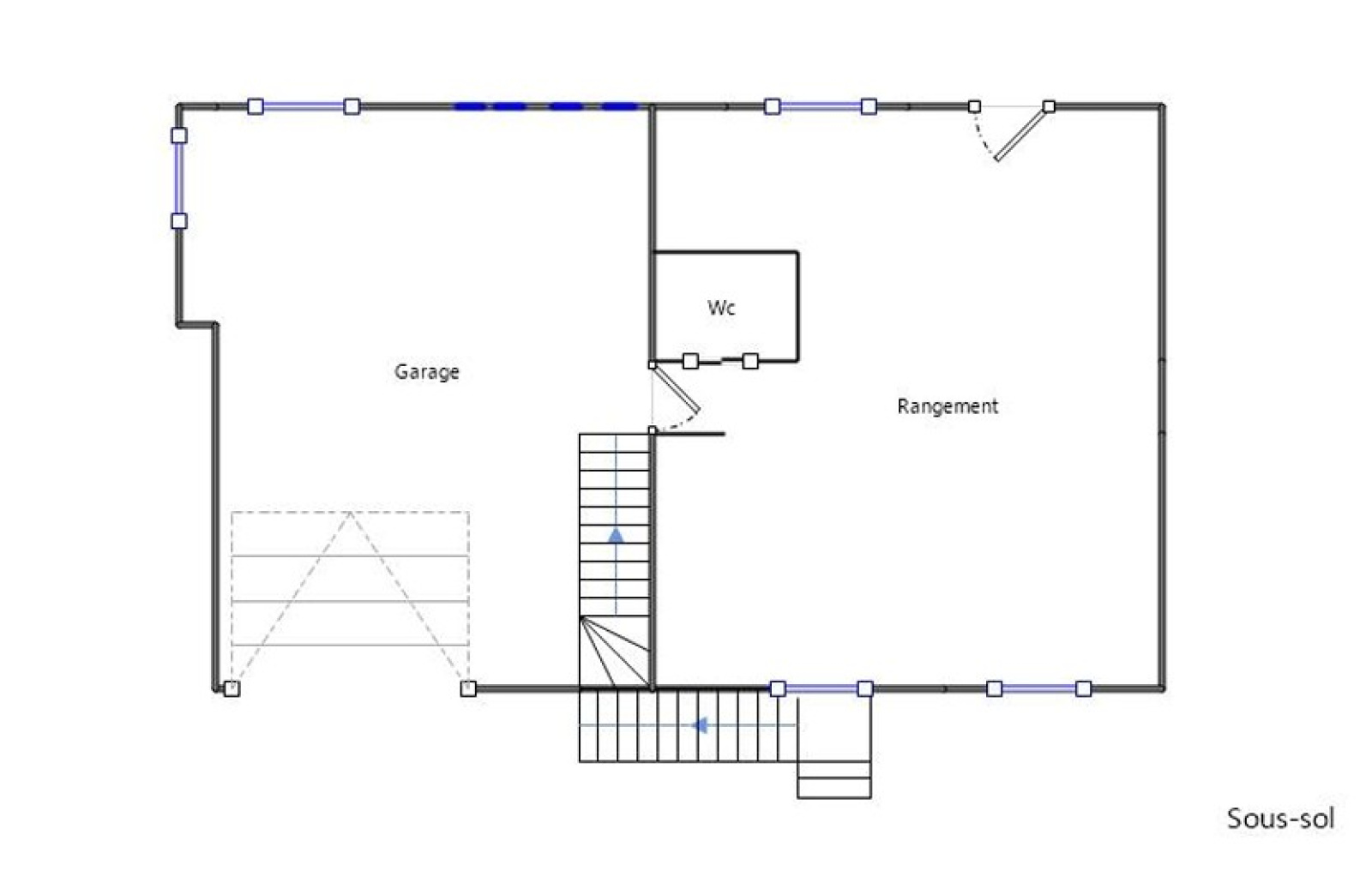
Au rez-de-jardin : garage, chaufferie, WC et buanderie. Pièce aménageable en studio

Un jardin clos de 700m² entoure la maison, terrasse + quelques arbres fruitiers.


Les informations sur les risques auxquels ce bien est exposé sont disponibles sur le site Géorisques
Descriptif de ce bien
Général
Code postal 86000
Surface habitable (m²) 92 m²
surface terrain 728 m²
Nombre de chambre(s) 3
Nombre de pièces 4
Nombre de niveaux 2
Détails
Nb de salle de bains 1
Nb de salle d'eau 1
Cuisine Séparée
Mode de chauffage Pompe à chaleur, Electrique
Type de chauffage Air pulsé, Radiateur
Format de chauffage Individuel, Individuel
Interphone NON
Visiophone NON
Terrasse OUI
Nombre de garage 1
Exposition Est-Ouest
Année de construction 1960
Quartier Couronneries
Composition
Rez de chaussée
entrée 6.79 m²

carrelage

chambre 11.51 m²

sol moquette avec placard

chambre 10.28 m²

sol moquette

chambre 11.60 m²

sol moquette

salon/sejour 38.04 m²

Sol lino

WC 1.43 m²

salle de bain 5.5 m²

degagement 6.07 m²

avec placards

garage 90 m²

Financier
Prix de vente honoraires TTC inclus 231 000 €
Prix de vente honoraires TTC exclus 221 000 €
Honoraires TTC à la charge acquéreur 4,52 %
Taxe foncière annuelle 1 794 €
Energie
DPE GES
Contacter pour ce bien
L'agence
Téléphone 05 49 88 01 87
Adresse
43 rue de la Marne BP368 86000 Poitiers

* Champ obligatoire

Les informations recueillies sur ce formulaire sont enregistrées dans un fichier informatisé par La Boite Immo agissant comme Sous-traitant du traitement pour la gestion de la clientèle/prospects de l'Agence / du Réseau qui reste Responsable du Traitement de vos Données personnelles.
La base légale du traitement repose sur l’intérêt légitime de l'Agence / du Réseau.
Elles sont conservées jusqu'à demande de suppression et sont destinées à l'Agence / au Réseau.
Conformément à la loi « informatique et libertés », vous pouvez exercer votre droit d'accès aux données vous concernant et les faire rectifier en contactant l'Agence / le Réseau.
Si vous estimez, après avoir contacté l'Agence / le Réseau, que vos droits « Informatique et Libertés » ne sont pas respectés, vous pouvez adresser une réclamation à la CNIL.
Nous vous informons de l’existence de la liste d'opposition au démarchage téléphonique « Bloctel », sur laquelle vous pouvez vous inscrire ici : https://www.bloctel.gouv.fr 
Dans le cadre de la protection des Données personnelles, nous vous invitons à ne pas inscrire de Données sensibles dans le champ de saisie libre
Ce site est protégé par reCAPTCHA, les Politiques de Confidentialité et les Conditions d'Utilisation de Google s'appliquent.

Découvrir nos outils